Haustyp T-STV 135 - Stadtvilla

Ansichtsbeispiele

T-STV 135

Wohn- u. Nutzfläche nach DIN ca. 135,00 m²

Aussenmaß ca.: 9,00 x 9,00 m

Dach: Zeltdach 28°

II. Vollgeschosse

 

z.B. Ausführung als Haus ohne Heizkosten

- inkl. hocheffiziente Wärmepumpe,

- Fußbodenheizung in den Wohnräumen,

- Photovoltaikanlage  

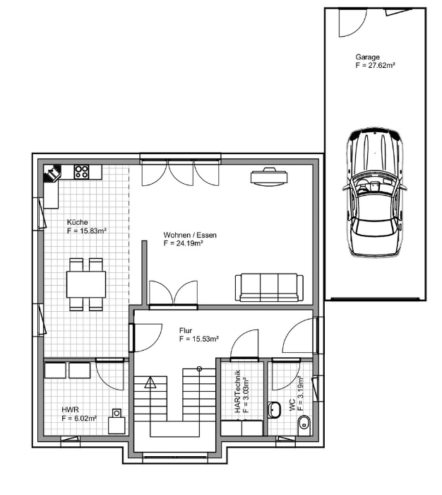
Grundrissbeispiele

Abb. enthalten Sonderausstattungen