Haustyp T-DHH 147 - Doppelhaus

Ansichtsbeispiele

T-DHH 147 Doppelhaushälfte

Wohn- u. Nutzfläche nach DIN ca. 147,00 m²

Aussenmaß: 12,50 x 6,70 m

Dach: Satteldach 38°

 

z.B. Ausführung als Haus ohne Heizkosten

- inkl. hocheffiziente Wärmepumpe,

- Fußbodenheizung in den Wohnräumen,

- Photovoltaikanlage  

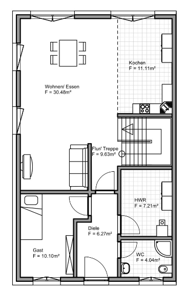
Grundrissbeispiele

Abb. enthalten Sonderausstattungen